Parlour

Where ideas spark and teams thrive

SPACE
DETAILS

The Parlour is designed for workshops, brainstorming sessions, and team huddles. Grab a marker, hit the flipchart, and let the creativity flow!

Overview

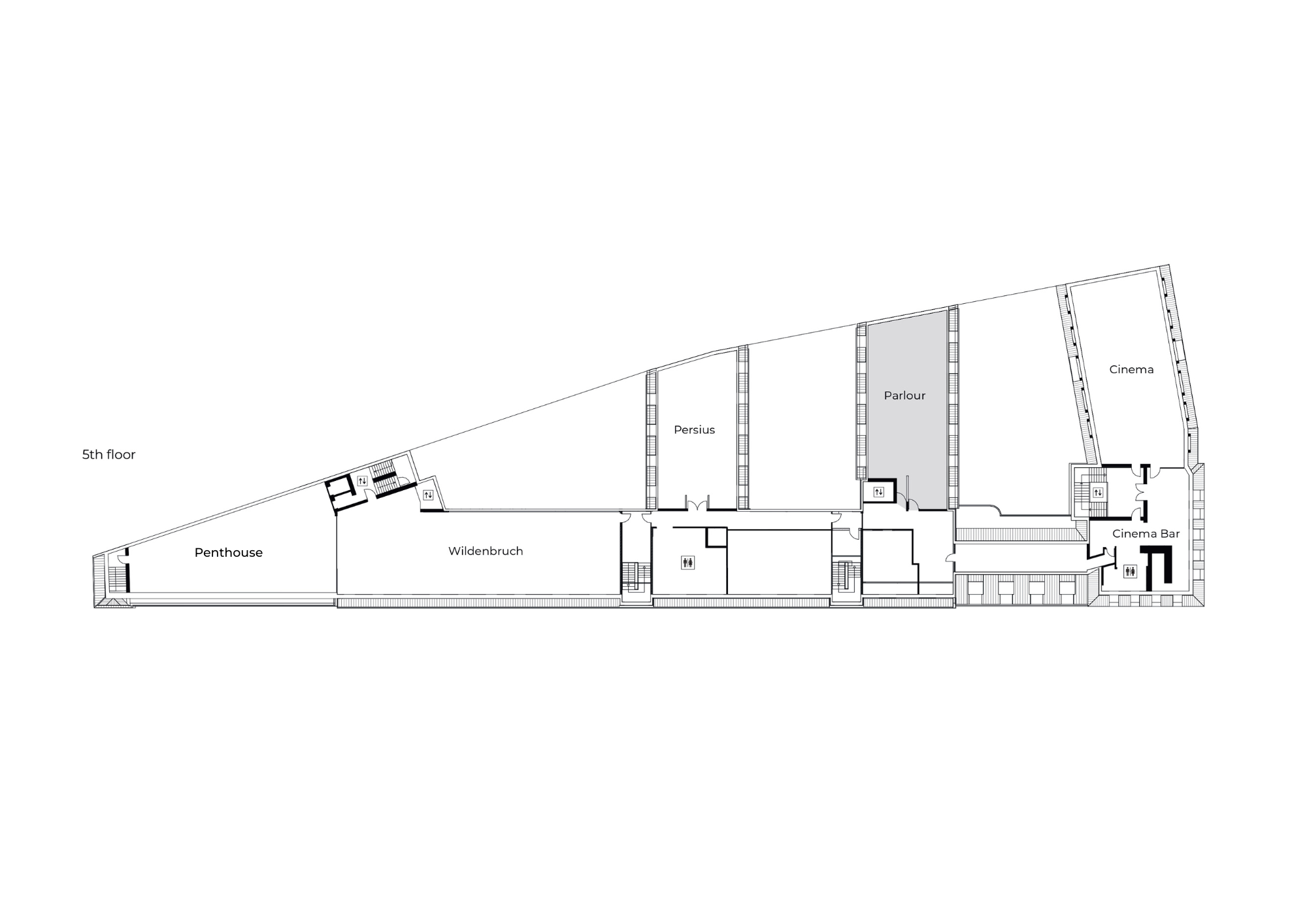
Location

Workshop wing, main event level
01

Size

214 m² · Height: 2.9 m
02

Stage & AV

65" TV · Built-in LED installation
03

Lighting & Comfort

Natural daylight · Air conditioning
04

Connectivity

High-speed Wi-Fi
05

Ideal For

Workshops · Brainstorming · Team sessions
06

Capacity by Setup

Standing: 60 · Theatre: 50 · Workshop: 40
07

Showcase

Venue
Impressions

No items found.

Location

FLOORPLAN